Modern Navbar

ELEVATED LIVING, REDEFINED

A dedicated fly-out bridge from the second-floor podium connects directly to the Sheikh Zayed Road intersection, ensuring seamless everyday connectivity. At podium level, a sprawling urban park offers elevated lifestyle amenities.

The Serene is thoughtfully designed to integrate every essential aspect of modern living from curated boutique retail and wellness-focused features to expansive green spaces and leisure zones. More than just a residence, it is a self-contained community where convenience and comfort come together effortlessly.

Download Brochure
The Serene Community

A Visual Harmony

Amenities for Every Lifestyle

Leisure Pool

Leisure Pool

Calisthenic Gym

Calisthenic Gym

Outdoor Cinema

Outdoor Cinema

Open Amphitheatre

Open Amphitheatre Lawn

Family BBQ

Family BBQ & Gathering Space

Kids Play Area

Kids Play Area

Floor Plan

1 Bedroom Apartment (Type A)

UNIT: 1 Bedroom + 1 Suite + 1 Balcony

SUITE: 429.59 SQ.FT.

BALCONY: 89.34 SQ.FT.

TOTAL: 518.93 SQ.FT.

1 BR Floor Plan A

1 Bedroom Apartment (Type B)

UNIT: 1 BEDROOM + 1 POWDER ROOM + 1 BALCONY

SUITE: 537.76 - 537.98 SQ.FT.

BALCONY: 106.99 SQ.FT.

TOTAL:644.75 - 644.97 SQ.FT.

1 BR Floor Plan 2

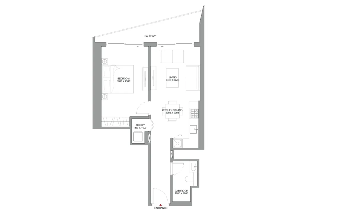
1 Bedroom Apartment (Type C)

UNIT: 1 BEDROOM + 1 SUITE + 1 BALCONY

SUITE: 595.46 SQ.FT.

BALCONY: 90.20 SQ.FT.

TOTAL:685.66 SQ.FT.

1 BR Floor Plan 2

1 Bedroom Apartment (Type D)

UNIT:1 BEDROOM + 1 SUITE + 1 BALCONY

SUITE: 593.63 SQ.FT.

BALCONY: 101.40 SQ.FT.

TOTAL:695.03 SQ.FT.

1 BR Floor Plan 2

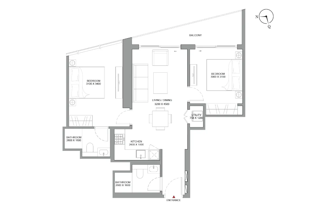
2 Bedroom Apartment (Type A)

UNIT: 2 BEDROOM + 1 SUITE + 1 BALCONY

SUITE:752.61 - 752.83 SQ.FT.

BALCONY:99.78 SQ.FT.

TOTAL: 852.39 - 852.61 SQ.FT.

2 BR Floor Plan 1

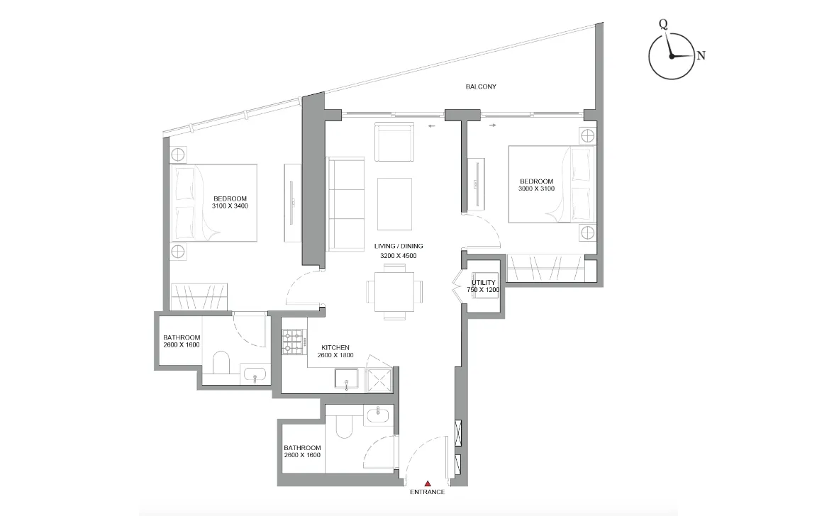
2 Bedroom Apartment (Type C)

UNIT: 2 BEDROOM + 1 SUITE + 1 BALCONY

SUITE: 775.43 SQ.FT.

BALCONY: 96.77 SQ.FT.

TOTAL: 872.20 SQ.FT.

2 BR Floor Plan 2

Location Map

Discover the prime location of our property with easy access to key destinations in Dubai.

Vibrant Living, Nearby Essentials

Airport Icon
JEBEL ALI METRO STATION
2 Minutes
Airport Icon
DXB INTERNATIONAL AIRPORT
29 Minutes
Marina Icon
DUBAI MARINA
13 Minutes

We’re Here to Help

Get in Touch

Preferred Mode of Contact *

Parva Realty Footer